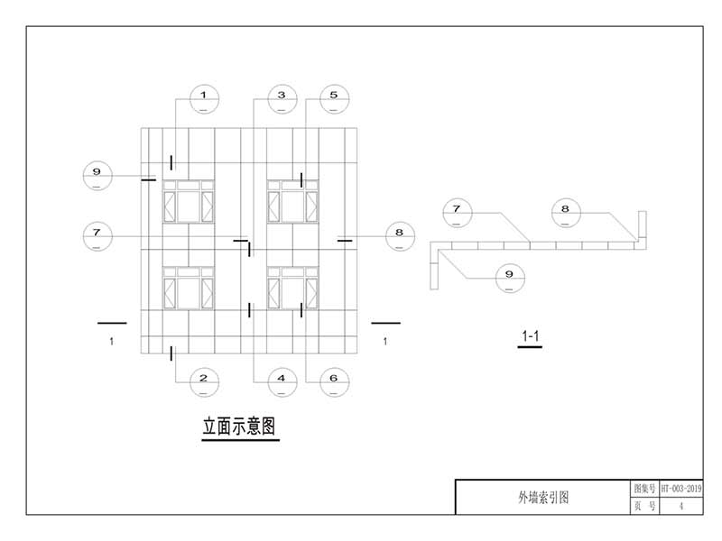
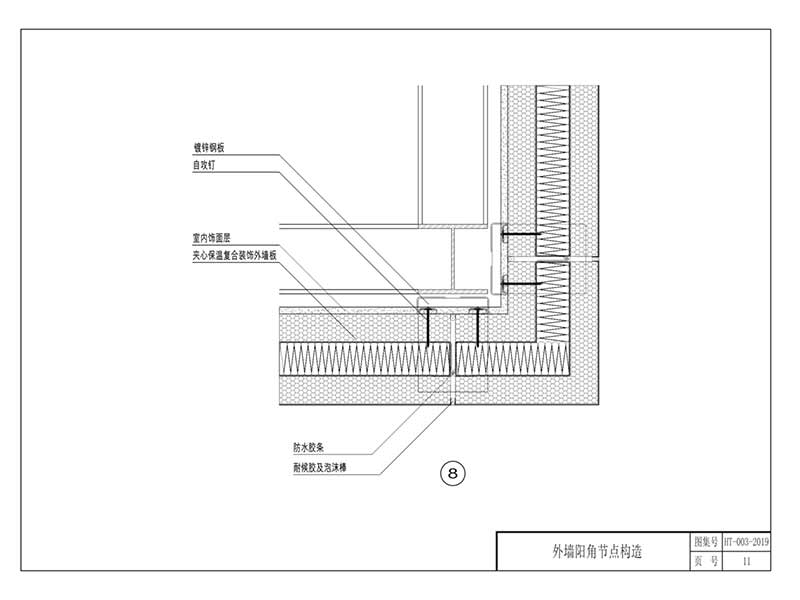
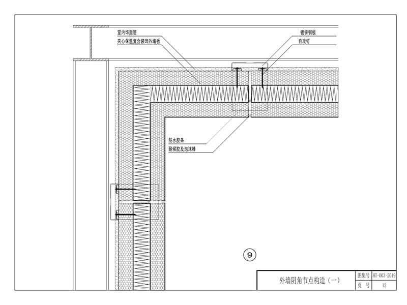
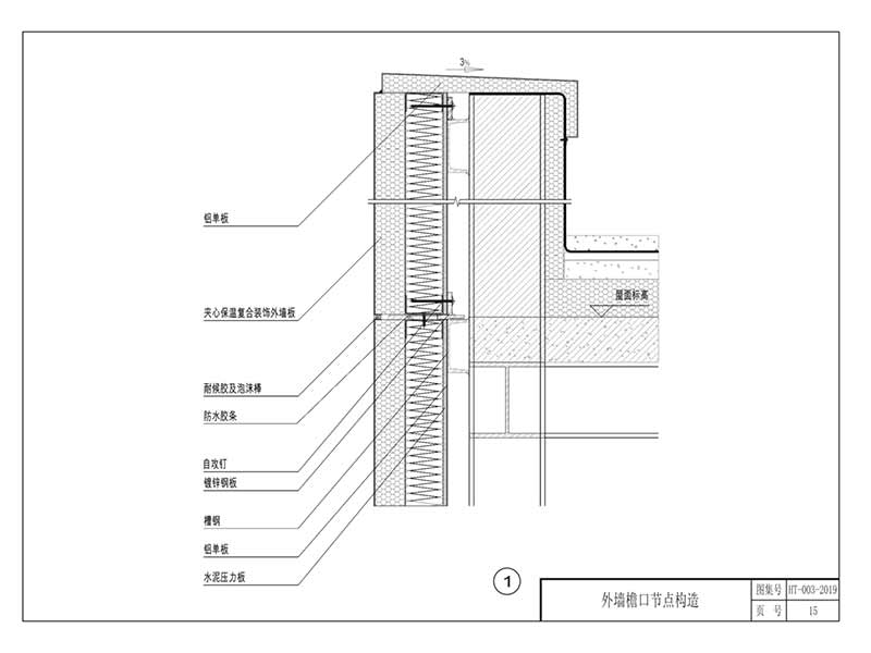
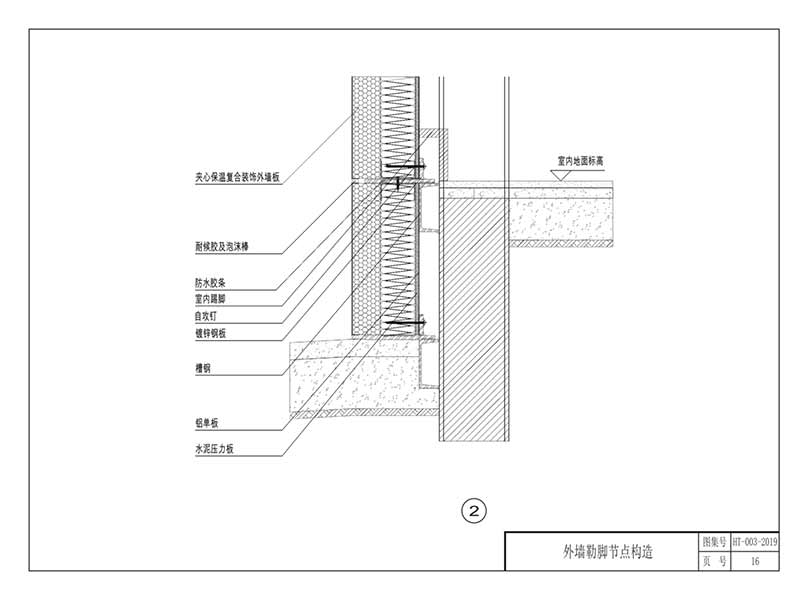
恒拓2019圖集包括外墻外保溫是一種把保溫層放置在主體墻材外面的保溫做法,因其可以減輕冷橋的影響,同時保護主體墻材不受太大的溫度變形應力,是目前應用最廣泛的保溫做法,也是大力倡導的保溫做法。
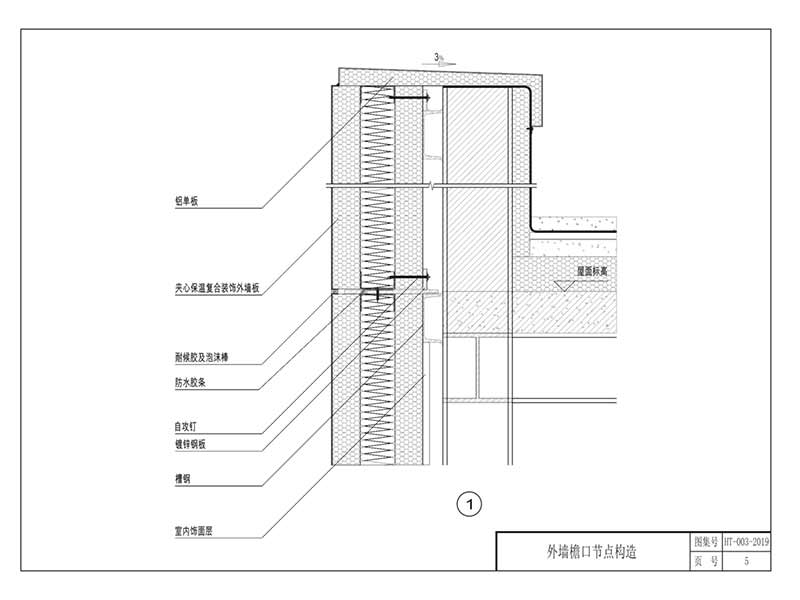
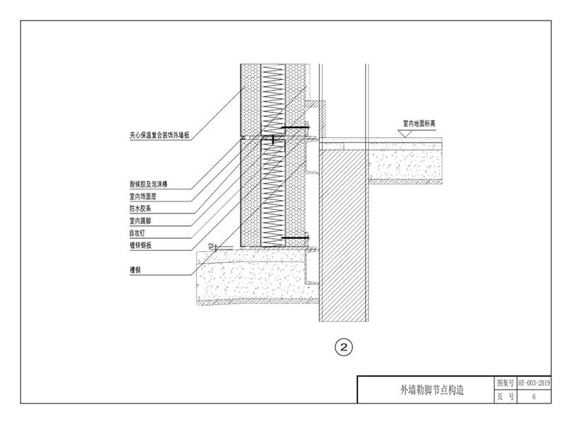
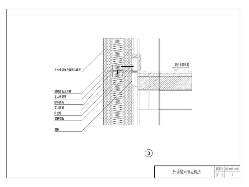
日前,我國外墻保溫材料應用最多的是模塑聚苯乙烯泡沫塑料EPS)、擠塑聚苯乙烯泡沫塑料XPS)、聚氨酯泡沫塑料(PU等。這些保溫材料具有導熱系數小、隔熱性能好的優點,但這些保溫材料(如EPS、XPS等)防火性能差,當動火作業且保護不當或因外部火焰易被引燃,一旦保溫材料引燃后,火焰會迅速蔓延,從面引發火災事故,造成生命財產巨大損失,并引起一定的社會恐慣和環境污染。而且易產生開裂、空鼓、滲水、脫落等質量通病,使用年限較短。根據JG144-2004(外墻外保溫工程技術規程》規定外墻外保溫系統使用壽命不小于26年,但實際由于質量控制困難等各方面因素,25年的使用壽命很多工程都很難得到保證,更無法與建筑物同壽命。因此防火性能好、保溫性能出色和使用壽命長的保溫材料更能贏得市場的認可,發泡陶瓷又稱輕質多孔陶瓷,是采用陶瓷陶土尾礦粉煤灰、煤矸石等固體廢棄物作為主要原料,經處理后裝入可拆卸式耐火組合模具,送入連續式窯爐經1200℃左右高溫焙燒,自然熔融發泡,形成高氣孔率的均勻閉孔陶瓷材料。發泡陶瓷具有強度高、防火、耐高溫、耐老化耐腐蝕、隔熱、抗熱震、吸水率低等優點,之前主要應用于火力電廠煙囪防腐內襯。發泡陶瓷是一種優質高效的保溫材料,它具有不燃(燃燒性能為A級1、耐高溫(熔點高于1000℃)、遇火情況下無毒無煙、良好的保溫性能導熱系數≤0060W/m·K、透汽、化學性能穩定等突出優點,是國內公認的理想保溫材料。
隨著人們對建筑物防火要求和外保溫系統使用壽命要求的逐步提高,發泡陶瓷外保溫系統由于其良好的保溫外墻外保溫是一種把保溫層放置在主體墻材外面的保溫做法,因其可以減輕冷橋的影響,同時保護主體墻材不受太大的溫度變形應力,是目前應用最廣泛的保溫做法,也是大力倡導的保溫做法。
日前,我國外墻保溫材料應用最多的是模塑聚苯乙烯泡沫塑料EPS)、擠塑聚苯乙烯泡沫塑料XPS)、聚氨酯泡沫塑料(PU等。這些保溫材料具有導熱系數小、隔熱性能好的優點,但這些保溫材料(如EPS、XPS等)防火性能差,當動火作業且保護不當或因外部火焰易被引燃,一旦保溫材料引燃后,火焰會迅速蔓延,從面引發火災事故,造成生命財產巨大損失,并引起一定的社會恐慣和環境污染。而且易產生開裂、空鼓、滲水、脫落等質量通病,使用年限較短。根據JG144-2004(外墻外保溫工程技術規程》規定外墻外保溫系統使用壽命不小于26年,但實際由于質量控制困難等各方面因素,25年的使用壽命很多工程都很難得到保證,更無法與建筑物同壽命。因此,防火性能好、保溫性能出色和使用壽命長的保溫材料更能
贏得市場的認可,發泡陶瓷又稱輕質多孔陶瓷,是采用陶瓷陶土尾礦粉煤灰、煤矸石等固體廢棄物作為主要原料,經處理后裝入可拆卸式耐火組合模具,送入連續式窯爐經1200℃左右高溫焙燒,自然熔融發泡,形成高氣孔率的均勻閉孔陶瓷材料。發泡陶瓷具有強度高、防火、耐高溫、耐老化耐腐蝕、隔熱、抗熱震、吸水率低等優點,之前主要應用于火力電廠煙囪防腐內襯。發泡陶瓷是一種優質高效的保溫材料,它具有不燃(燃燒性能為A級1、耐高溫(熔點高于1000℃)、遇火情況下無毒無煙、良好的保溫性能,導熱系數≤0060W/m·K、透汽、化學性能穩定等突出優點,是國內公認的理想保溫材料。
隨著人們對建筑物防火要求和外保溫系統使用壽命要求的逐步提高,發泡陶瓷外保溫系統由于其良好的保溫防火及與建筑物同壽命的憂良性能,已經開始在我省推廣應用起來,并在一些建筑物上成功應用,取得了良好的效果。由于我省沒有一部可以完全適用于我省的設計人員的標準圖集,使得發泡陶瓷保溫體系在我省建筑設計和建造中的應用被極大的限制,在很多建筑中由于無標準和規范的參照,設計人員無基本設計參數,這對發泡陶瓷外保溫系統在建筑設計和應用上均帶來不便。同時由于缺乏相關的標準規范對其進行指導和說明,導致了施工方法不規范,缺乏施工過程的必要質量控制致使技術、材料的質量性能不符合要求,從而給工程質量留下了很大的隱患。“發泡陶瓷保溫建筑構造圖集”就是在這個基礎之上結合嚴寒和寒冷地區的氣候特點以及抗震要求進行編制。




























聯系人:林經理
手機:13709810247
郵箱:syhengtuo@qq.com
地址: 遼寧省沈陽市大東區榆林大街83號